Wohn- & Geschäftsimmobilie in Otterndorf als Kapitalanlage
Neu




















- Objektart
- Haus
- Objekttyp
- Wohn- und Geschäftshaus
- Vermarktungsart
- Kauf
- PLZ
- 21762
- Ort
- Otterndorf
- ImmoNr
- DMI-190
- Wohnfläche
- ca. 83 m²
- Grundstücksgröße
- ca. 93 m²
- Nutzfläche
- ca. 69 m²
- Anzahl Zimmer
- 3
- Anzahl Badezimmer
- 1
- Kaufpreis
- 332.000,00 €
- Baujahr
- 1954
- Außen-Provision
- 3,57%
Beschreibung
Beim Betreten der Immobilie eröffnet sich Ihnen eine attraktive Kombination aus Wohnen und Arbeiten unter einem Dach – ideal für Gewerbetreibende und Kapitalanleger gleichermaßen.Im Erdgeschoss befindet sich die Gewerbeeinheit, die aktuell vermietet ist und somit bereits eine zuverlässige Einnahmequelle darstellt. Die gute Sichtbarkeit und vielseitige Nutzbarkeit bieten langfristiges Potenzial – sei es zur Fortführung der Vermietung oder zur Eigennutzung für Ihr eigenes Geschäft.
Ein besonderes Highlight ist die darüberliegende Wohneinheit, die sich perfekt als komfortabler Rückzugsort für den Eigentümer anbietet. Helle Räume, großzügige Fensterflächen und ein durchdachter Grundriss schaffen eine angenehme Wohnatmosphäre.
Diese Immobilie vereint auf gelungene Weise wirtschaftliches Potenzial und privaten Wohnkomfort: Ob als Standort für Ihr eigenes Gewerbe mit kurzen Wegen oder als renditestarke Kapitalanlage mit stabilen Mieteinnahmen – hier eröffnen sich vielfältige Nutzungsmöglichkeiten.
Nutzen Sie diese Gelegenheit, Wohnen und Arbeiten effizient zu verbinden oder Ihr Portfolio um eine attraktive Immobilie mit Zukunftsperspektive zu erweitern.
Lage
Die Immobilie befindet sich in attraktiver, zentraler Lage von Otterndorf, direkt am historischen Kirchplatz. Die Umgebung ist geprägt von einem charmanten Mix aus gewachsener Bebauung, kleinen Geschäften, gastronomischen Angeboten und kulturellen Einrichtungen, was dieser Lage einen ganz besonderen, lebendigen Charakter verleiht.Der Ortskern von Otterndorf mit seinen zahlreichen Einkaufsmöglichkeiten, Cafés, Restaurants sowie Einrichtungen des täglichen Bedarfs ist fußläufig erreichbar. Auch Ärzte, Apotheken, Schulen und Kindergärten befinden sich in unmittelbarer Nähe und bieten eine hervorragende Infrastruktur für alle Altersgruppen.
Ein besonderes Highlight ist die Nähe zur Nordsee. Der beliebte Grünstrand sowie die Elbmündung sind nur wenige Minuten entfernt und laden zu ausgedehnten Spaziergängen, Radtouren und vielfältigen Freizeitaktivitäten ein.
Die Verkehrsanbindung ist ebenfalls sehr gut: Über die Bundesstraße B73 erreichen Sie schnell die Städte Cuxhaven und Stade. Zudem verfügt Otterndorf über einen Bahnhof mit regelmäßigen Verbindungen, unter anderem in Richtung Hamburg, was den Standort auch für Pendler attraktiv macht.
Insgesamt überzeugt die Lage durch ihre zentrale, dennoch ruhige Position, die Nähe zur Nordsee sowie eine sehr gute Infrastruktur – ideal für Eigennutzer, Ferienimmobilien oder Kapitalanleger.
Ausstattung
Wohn-&GeschäftshausMaisonettewohnung im Obergeschoss
- saniert 2028/2019
-Wohnfläche: 82,58m²
-3 Zimmer
-Küche
-Bad
-Gäste-WC
- Wohnung Potential: 800€/mtl. kalt
Grundstücksgröße 93m²
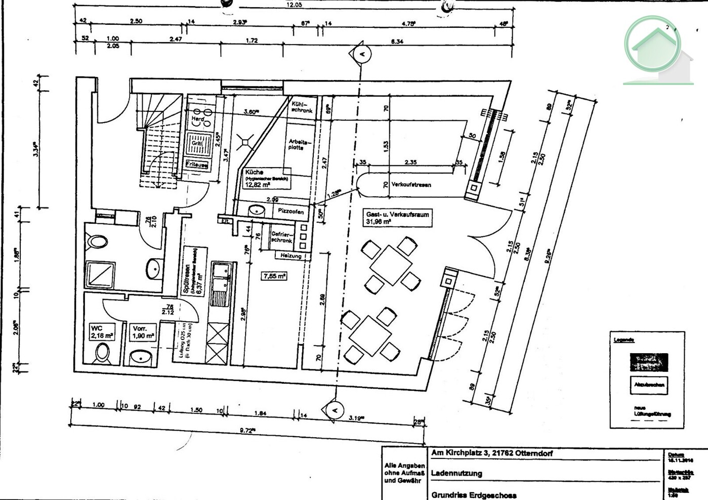
Gewerbeeinheit im Erdgeschoss
-69,45m²
-vermietet für 1.265€/mtl. kalt
Gasheizung
